ÜberströmeinheitTYP USE-KLAP

Beschreibung

Überströmeinheiten vom Typ USE-LAP dienen zum Verschließen und Öffnen einer lufttechnischen Öffnung in der Feuerwehraufzugs-Schachtwand für die Überströmung vom druckbelüfteten Aufzugsschacht zum Vorraum.

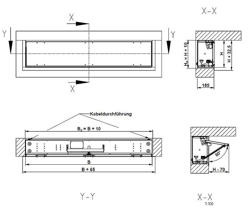
Die Überströmeinheit besteht aus einer Einbauhülse aus verzinktem Stahlblech, die vollständig in den Wanddurchbruch integriert wird. Innerhalb der Hülse sind Mehrachsscharniere und ein Kettenantrieb verbaut, über die eine Verschlussplatte durch rotierende Bewegung bis zu einem Öffnungswinkel von 80° geöffnet werden kann.
Die Verschlussplatte besteht standardmäßig aus Aluminium in RAL 9010 . Alternativ sind individuelle Ausführungen möglich, z. B. alternative Farbtöne oder mit zusätzlichen Gestaltungselementen, um eine optische Integration in die Architektur des Vorraums zu ermöglichen.

Mehr lesen... Schließen

Durch ihre spezielle Öffnungskinematik kann die Einheit wand- oder deckenbündig eingebaut werden. Da auf Jalousieklappenblätter und umlaufende Rahmenelemente verzichtet wird, steht nahezu die gesamte Durchbruchfläche zur freien Durchströmung zur Verfügung. Dies führt zu einem reduzierten Druckverlust.

Die elektrische Anbindung der Überströmeinheit, inklusive Rückmeldung der Endlagen, erfolgt über ein loses, ca 1,5 m langes Kabel bauseits. Optional ist ein Klemmkasten in der Einbauhülse möglich. Eine Ausführung mit 230 V ist ebenfalls möglich - in diesem Fall beträgt die Mindestbreite der Überströmeinheit 1100 mm.

Technische Daten

Überströmeinheit Feuerwehraufzug als klappbare Ausführung
Laufzeit ca. 45 Sekunden
Nennspannung 24 V DC / +15 % / 0,8 A
Schutzart IP 32
Temperaturbereich Antrieb −15 °C … 75 °C
Temperatursicherheit Antrieb B300 (30 min / 300 °C)
Druckkraft / Zugkraft Antrieb 250 N

Hauptabmessungen

Die Überströmeinheit mit rotativ öffnender Platte ist in beliebigen Abmessungen und Kantenlängen von B = 1000 bis 2200 mm und H = 200 bis 550 mm verfügbar. Sondergrößen sind auf Anfrage verfügbar.

Die Überströmeinheit kann sowohl horizontal als auch vertikal montiert werden. Die Variante USE-KLAP eignet sich besonders für wand- oder deckenbündige Einbausituationen. Die Befestigung erfolgt frontseitig, wodurch kein zusätzlicher Bauraum oberhalb der Einheit erforderlich ist.
Die USE-Einheiten können in der Laibung mittels Stockschrauben befestigt werden, wodurch eine Justierung in alle Richtungen ermöglicht wird. Zur Unterstützung der Montage befinden sich im Boden der Einbauhülse vier Justierschrauben, mit denen die Einheit im Wanddurchbruch ausgerichtet und nivelliert werden kann.

Auslegung

Der Druckverlust für die Überströmung liegt in einer ähnlichen Größenordnung wir der einer Jalousieklappe. Abhängig von der individuellen Größe und Anordnung betragen die Druckverlustbeiwerte Zeta 2,2 bis 3,5.*
Über die folgende Formel lässt sich der Druckabfall an der Überstromeinheit in Abhängigkeit der Größe und vorhandenem Volumenstrom bestimmen:

Δp =
ζ · 2 · ρ
2 · A2

Δpζ: Druckdifferenz (Pa)
ζ: Druckverlustbeiwert
ρ: Dichte (kg/m3 )
V: Volumenstrom (m3/s)
A: Querschnitt gem. Nennmaßen (m²)

Das nachfolgende Diagramm ermöglicht die Bestimmung des Druckverlustbeiwerts in Abhängigkeit vom Freiflächenverhältnis und dem Abstand zur Decke. Das Freiflächenverhältnis beschreibt das Verhältnis der freien Abströmfläche zur Einströmfläche und kann der nachfolgenden Tabelle entnommen werden.

Ein seitlicher Mindestabstand von 200 mm ist einzuhalten. Wand- und deckenbündige Einbausituationen sind auf Anfrage realisierbar.

Downloads

Ausschreibungstexte & Kataloge zum Download